Mennonietenbuurt te Amstelhoek

Mennonietenbuurt te Amstelhoek

€ 1.950,00
per maand excl g/w/e

Mennonietenbuurt, Amstelhoek
  • Object ID: 986
  • Bericht bijgewerkt: 2023-05-03 18:25:59
  • Aantal kamers: 4
  • Slaapkamers: 3
  • Badkamers: 1
  • Verdiepingen: 2
  • Bebouwd: 120 m²
  • Status:
  • Soort:
  • Bijzonderheden: Gestoffeerd

Omschrijving

Mennonietenbuurt te Amstelhoek

Op een prachtige locatie aan de rivier de Amstel, ligt deze hoogwaardig gerenoveerde 2-onder-1-kapwoning (ca. 120 m²) met een aanlegsteiger. De woning heeft een rustige ligging in het dorp Amstelhoek, op korte afstand van het dorpscentrum van Uithoorn. Op korte afstand is tevens de uitvalsweg N201 te vinden waardoor o.a. Amstelveen, Amsterdam, Schiphol en Utrecht snel te bereiken zijn.

De woning met zonnepanelen, wordt verwarmd door vloerverwarming en beschikt over een verrassende indeling met praktische bergruimen. Boven zijn er 2 slaapkamers en 1 beneden, die ook goed als werkkamer in te richten is. Om buiten te genieten kunt u zowel terecht in de achtertuin als op de aanlegsteiger.

 

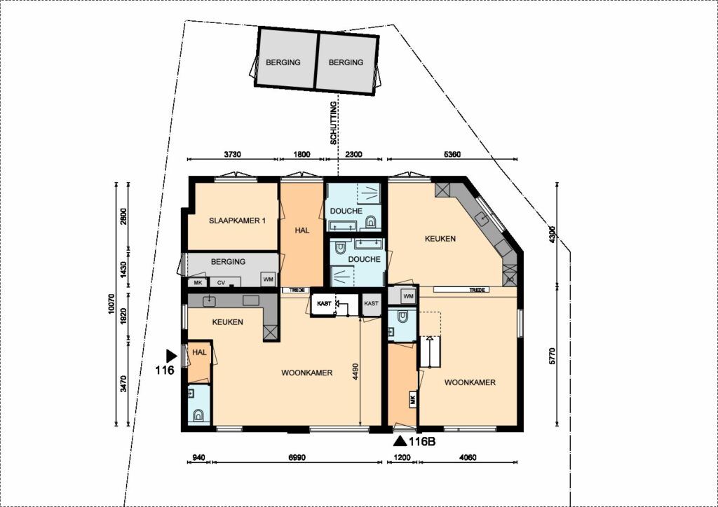
Indeling
Begane grond: Entree met ruime hal en toilet. Riante woonkeuken in L-opstelling, met een houten aanrechtblad en voorzien van inductiekookplaat, vaatwasmachine, koelkast, combi-oven. De woonkamer heeft 2 bergkasten en grote raampartijen met verrassend uitzicht op Amstel.

Vanuit de woonkamer bereikt u het achterste gedeelte van het huis. Hier treft u een ruime interne berging waarin zich de CV installatie en de meterkast bevindt. Hier is tevens de wasmachine aansluiting en er is ook ruimte voor een droger.

De luxe badkamer is tevens voorzien van vloerverwarming en een inloopdouche, wastafelmeubel en een badkamer spiegel met verlichting en verwarming. Ook bevindt zich in dit gedeelte van de woning een slaap/hobby/werkkamer met uitzicht op de tuin. Via de openslaande deuren is de achtertuin met schuur bereikbaar.

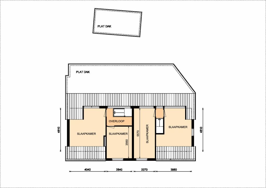
Eerste verdieping: Vanuit de woonkamer bereikt u met een trap naar boven de overloop, bergruimten en 2 slaapkamers met prachtig uitzicht op de Amstel.

 

Tuin
Via de zijkant loopt u naar de entree van de woning en vanuit het achterste gedeelte van de woning huis bereikt via openslaande deuren de tuin met schuur. De tuin is volledig betegeld en door de beschutte ligging heeft u hier veel privacy.

Aan het water heeft u de beschikking over een eigen steiger met aanlegplaats voor een boot. Op de steiger kunt u genieten van de zon en het uitzicht, ook is het mogelijk uw hengel uit te gooien of om een duik in het water te nemen.

 

Locatie
De woning is gelegen in het dorp Amstelhoek. Amstelhoek heeft circa 1.000 inwoners en behoort tot de gemeente De Ronde Venen. Voor alle voorzieningen, zoals winkels, horeca, scholen, sportverenigingen enz. kunt u terecht in het nabijgelegen centrum van Uithoorn, dat gelegen is aan de andere zijde van rivier de Amstel. Uitvalswegen liggen op korte afstand evenals het openbaar vervoer.

Overdracht

  • Huurprijs per maand: € 1.950,00
  • Prijs opmerking: per maand excl. g/w/e
  • Aangeboden sinds: 24 april 2023
  • Beschikbaar: 15 mei 2023
  • Huurovereenkomst: Tijdelijke contract
  • Looptijd: max 2 jaar
  • Borg: € 3.900,00

Kenmerken

Kenmerken:
  • Dichtbij dorpskern

Bekijk op de kaart